Dům č. 6

Jednotka č. 11

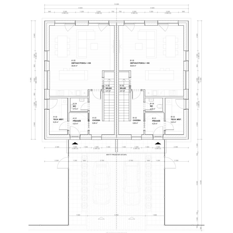
4kk · Celková podlahová plocha: 124.49 m² · Plocha pozemku: 556 m²
A1.01Předsíň4.20 m²
A1.02 Tech. míst. + sklad6.20 m²
A1.03Chodba6.89 m²
A1.04WC2.15 m²
A1.05Obývací pokoj + kuchyň38.94 m²
A1.06Sklad3.01 m²
A2.01Chodba4.57 m²
A2.02  Šatna2.63 m²
A2.03Koupelna2.55 m²
A2.04Pracovna5.02 m²
A2.05Ložnice13.25 m²
A2.06Koupelna4.93 m²
A2.07Pokoj12.05 m²
A2.08Pokoj11.86 m²
CELKKOVÁ PODLAHOVÁ PLOCHA
124.49 m²
PLOCHA POZEMKU
556 m²
CENA
9 490 000 Kč
STAV
Rezervováno

 Jak může vypadat váš vysněný domov

Tady začíná váš domov

Jsme tu pro vás, kdykoli budete chtít zjistit víc.
Zavolejte, napište nebo nás začněte sledovat na instagramu.

Zajímá vás bydlení v Zelené Narysov?

Stačí nám napsat a my se vám ozveme. Odpovíme na vaše
otázky, co nejdříve.