Dům č. 6

Jednotka č. 12

4+kk · Celková podlahová plocha: 124.49 m² · Plocha pozemku: 572 m²
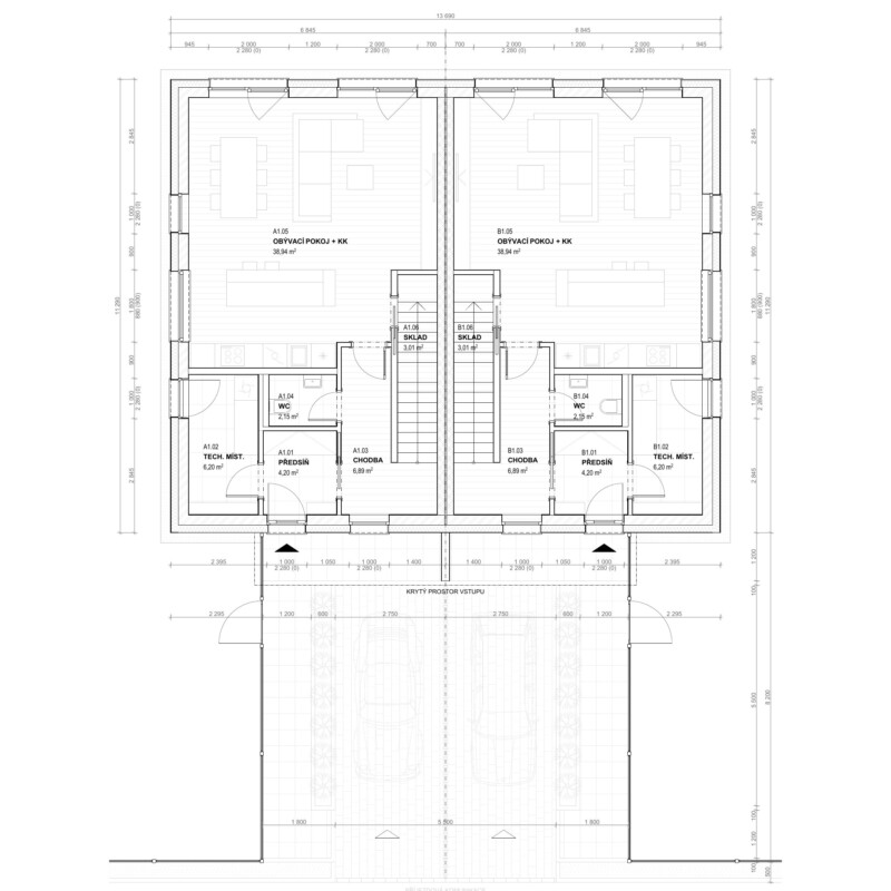
B1.01Předsíň4.20 m²
B1.02 Tech. míst. + sklad6.20 m²
B1.03Chodba6.89 m²
B1.04WC2.15 m²
B1.05Obývací pokoj + kuchyň38.94 m²
B1.06Sklad3.01 m²
B2.01Chodba4.57 m²
B2.02  Šatna2.63 m²
B2.03Koupelna2.55 m²
B2.04Pracovna5.02 m²
B2.05Ložnice13.25 m²
B2.06Koupelna4.93 m²
B2.07Pokoj12.05 m²
B2.08Pokoj11.86 m²
CELKKOVÁ PODLAHOVÁ PLOCHA
124.49 m²
PLOCHA POZEMKU
572 m²
CENA
9 540 000 Kč
STAV
Rezervováno

 Jak může vypadat váš vysněný domov

Tady začíná váš domov

Jsme tu pro vás, kdykoli budete chtít zjistit víc.
Zavolejte, napište nebo nás začněte sledovat na instagramu.

Zajímá vás bydlení v Zelené Narysov?

Stačí nám napsat a my se vám ozveme. Odpovíme na vaše
otázky, co nejdříve.