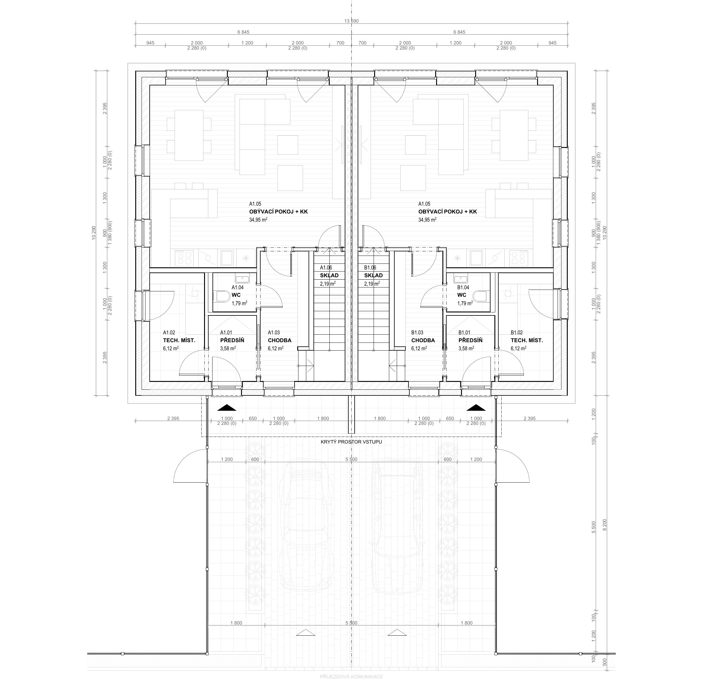
| B1.01 | Předsíň | 3.58 m² |
| B1.02 | Tech. míst. + sklad | 6.12 m² |
| B1.03 | Chodba | 6.12 m² |
| B1.04 | WC | 1.79 m² |
| B1.05 | Obývací pokoj + kuchyň | 34.95 m² |
| B1.06 | Sklad | 2.19 m² |
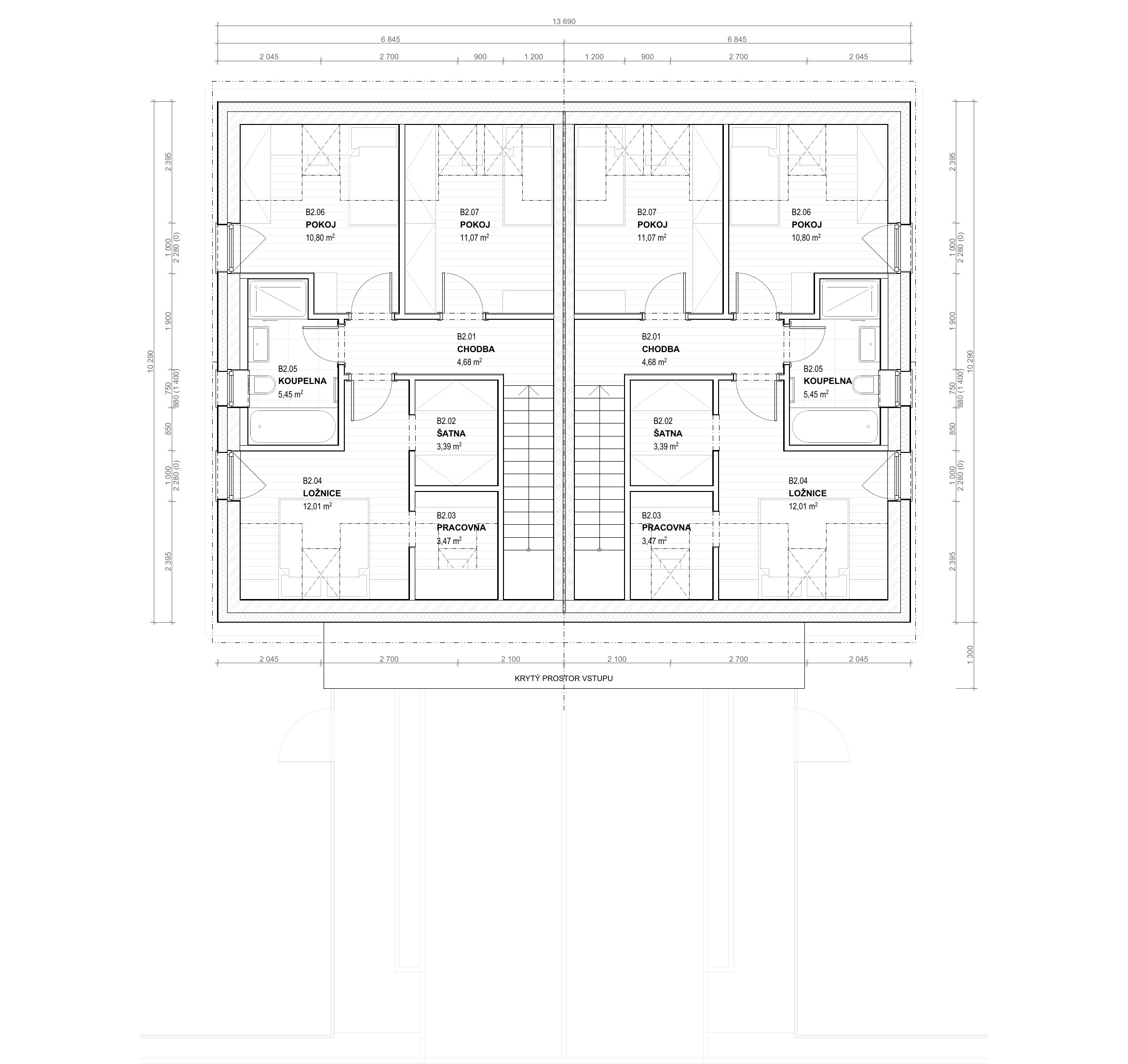
| B2.01 | Chodba | 4.68 m² |
| B2.02 | Šatna | 3.39 m² |
| B2.03 | Koupelna | 5.45 m² |
| B2.04 | Pracovna | 3.47 m² |
| B2.05 | Ložnice | 12.01 m² |
| B2.06 | Koupelna | 5.45 m² |
| B2.07 | Pokoj | 10.80 m² |
| B2.08 | Pokoj | 11.07 m² |
Dům č. 2
Jednotka č. 4
4+kk · Celková podlahová plocha: 111.76 m² · Plocha pozemku: 545 m²
CELKKOVÁ PODLAHOVÁ PLOCHA
111.76 m²
PLOCHA POZEMKU
545 m²
CENA
9 330 000 Kč
STAV
Volný
Jak může vypadat váš vysněný domov
Tady začíná váš domov
Jsme tu pro vás, kdykoli budete chtít zjistit víc.
Zavolejte, napište nebo nás začněte sledovat na instagramu.
Zajímá vás bydlení v Zelené Narysov?
Stačí nám napsat a my se vám ozveme. Odpovíme na vaše
otázky, co nejdříve.

